Beschrijving
Ben jij op zoek naar een ruime 2/1 kap met garage eigen oprit, erker, dakkapel en overkapping? Wil jij wonen in de leuke en ruime opgezette woonwijk Spikhorst? Dan is de Graaf van Bentheimlaan 14 een woning die je zeker gezien moet hebben.
Wij nemen je graag mee door de woning: Via de entree in de zijgevel van de woning kom je in de ruime hal met trapopgang, meterkast en toilet. Loop je rechtdoor dan kom je in de woonkamer. De woonkamer is straatgericht en lekker licht, de eethoek bevindt zich aan de tuinzijde en hier is een schuifpui met toegang te tuin. De keuken is in een hoekopstelling geplaatst en ook vanuit de keuken is de tuin bereikbaar.
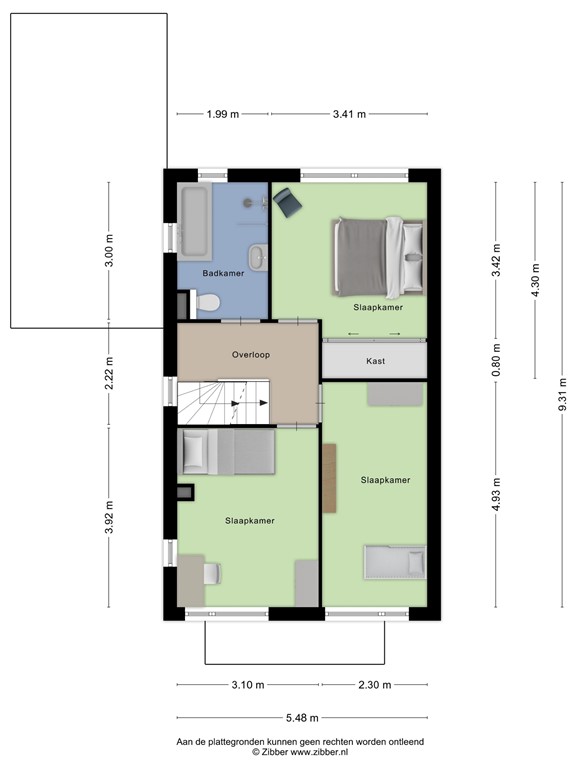
Op de eerste verdieping is er een ruime overloop met toegang tot drie goede slaapkamers en een badkamer met ligbad, inloopdouche, toilet en wastafel. Via een vaste trap kom je op de ruime tweede verdieping met een ruimte voor de wasmachine en twee goede slaapkamers.
De tuin is op het oosten gelegen en voorzien van een overkapping en houtopslag. De tuin is prachtig en met gevoel voor ruimte aangelegd.
Kortom ben jij op zoek naar een mooie ruime 2/1 kap in het mooie Renswoude? Dan moet je deze woning zeker gezien hebben.
Indeling
Hal met trapopgang, meterkast, toilet, toegang tot de woonkamer, eethoek, keuken.
Eerste verdieping
Ruime overloop met toegang tot drie slaapkamers, badkamer.
Tweede verdieping
Witgoedaansluitingen en twee slaapkamers
Tuin
Tuin op het Oosten, overkapping en houtopslag.
Bijzonderheden
- De kachel verwarmt dmv een pomp da badkamer. De kachel zal achterblijven.
- Eigen oprit
- Garage
- 5 slaapkamers
- Dakkapel
Plattegronden
181373665-294927091-se-147397012-1768922818190.png
181373665-294944290-se-147397012-1768922818190.png
181373665-294945322-se-147397012-1768922818190.png
181373665-294948541-se-147397012-1768922818190.png
181373665-294946687-se-147397012-1768922818190.png