Beschrijving
Let op een afspraak maken is niet nodig. De kijkdagen zijn woensdag 25 en donderdag 26 februari van 15:00 uur tot 17:00 uur.
Ben jij op zoek naar een uit de kluiten gewassen middenwoning met een uitbouwde keuken, dakkapel en stenen berging? Wil jij wonen aan een brede laan nabij het buitengebied, de sportvelden, het open luchtzwembad en ook de winkels? Kom dan eens kijken bij deze woning en laat je verrassen door de ruimte.
De woning is aan de voorzijde voorzien van kunststof kozijnen met dubbel glas en aan de achterzijde van houten kozijnen en op de verdieping deels enkele beglazing. Wij nemen je graag mee door de woning: Via de entree kom je in de hal met de meterkast, het toilet en de trapopgang en trapkast. Aan je rechterzijde heb je dan een deur naar de woonkamer. De woonkamer is royaal te noemen, zeker ook doordat de keuken naar de uitbouw is verplaatst. Ook is de woonkamer door de grote raampartijen heerlijk licht. Doordat de keuken dus is verplaatst heb je een lekkere ruimte voor een grote eettafel of een ruimte voor een werkplek aan huis. De keuken is in een hoekopstelling geplaatst en ook hier zijn veel ramen aanwezig waardoor je een fijn contact met de tuin hebt. De tuin is vanuit de keuken bereikbaar.
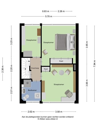
Op de eerste verdieping is er een overloop met toegang tot drie slaapkamers en een badkamer. Doordat deze woningen breed zijn, zijn de slaapkamers fors te noemen. De kamer ouder slaapkamer heeft ook nog eens de beschikking over veel vaste kast ruimte. In de badkamer tref je een wastafel, toilet en douchehoek aan. De badkamer kan op natuurlijke wijze geventileerd worden.
Via een vaste trap kom je op de tweede verdieping met een grote voorzolder waar je ook de cv-ketel aantreft alsook de wasmachine aansluiting. Ook zijn er op deze verdieping maar liefst drie kamers gerealiseerd. Één kamer is echt wel wat kleiner en kan goed dienst doen als thuiswerk plek of extra bergruimte of als game-room, de tweede andere slaapkamers zijn van een mooi formaat.
De tuin is op het oosten gelegen en via een achterom bereikbaar. De tuin is onderhoudsvriendelijk aangelegd en heeft een stenen berging.
Kortom ben jij op zoek naar die leuk gelegen en ruime starterswoning? Dan is dit je kans.
Indeling
Entree, hal met toilet, trapopgang, trapkast en toegang tot de woonkamer, eethoek en keuken in de aanbouw.
Eerste verdieping
Overloop met trapopgang naar zolder, drie slaapkamers en een badkamer.
Tweede verdieping
Overloop met drie slaapkamers.
Tuin
Onderhoudsvriendelijke tuin met achterom en een stenen berging.
Tuin is gelegen op het oosten.