Beschrijving
Ben jij op zoek naar een uitgebouwde 2/1 kap met een erg gave tuinkamer? Wil jij een tuin op het zuiden, vrij uitzicht aan de voorzijde, garage, oprit en een A+ energielabel? Dan zien wij je graag bij deze woning verschijnen.
Wij nemen je graag mee door de woning: Via de entree kom je in de royale hal met meterkast, toilet. Loop je rechtdoor dan kom je in de woonkamer waarbij de keuken zich aan de voorzijde bevindt en een vrij uitzicht over de vijvers biedt. De keuken is goed onderhouden en in een U-stelling geplaatst. De woonkamer met uitbouw is tuingericht en door de ligging op het zuiden is de woonkamer licht te noemen. In de woonkamer is er ook een trapkast aanwezig. Via openslaande deuren is de zonnige tuin bereikbaar en heb je toegang tot de geïsoleerde tuinkamer die stijlvol ingericht is.
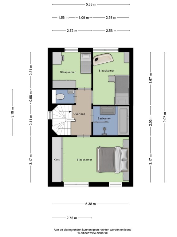
Op de eerste verdieping is er een overloop met toegang tot drie slaapkamers, een badkamer en een separaat toilet, ideaal! De slaapkamers hebben allemaal een mooie afmeting waarbij de ouderslaapkamer over de gehele breedte van de woning is en dus erg fors. Goed in te delen met een flinke ruimte voor een vaste kast.
Via een vaste trap kom je op de tweede verdieping met een voorzolder met de wasmachine en droger aansluiting als ook de cv-ketel. Daarnaast zijn er ook nog eens twee grote slaapkamers gerealiseerd.
Kortom; ben jij op zoek naar die goed onderhouden, royale twee-onder-één kap woning met oprit en garage? Wil jij heerlijk vrij uitzicht en genieten van een energiezuinige woning? Dan moet je deze woning zeker gezien hebben.
Indeling
Entree, royale hal met meterkast en toilet, woonkamer met trapkast, keuken bevindt zich aan de voorzijde met vrij uitzicht.
Eerste verdieping
Overloop met toegang tot drie slaapkamers, badkamer en een separaat toilet.
Tweede verdieping
Voorzolder met witgoedaansluitingen, cv-ketel en twee slaapkamers
Tuin
Tuin op het Zuiden met Geïsoleerde tuinkamer.
Bijzonderheden
- Energiezuinige woning
- 5 slaapkamers
- Tuin op het zuiden
- Geïsoleerde stijlvolle tuinkamer
- Eigen oprit
- Garage
Plattegronden
180609046_1598406_eekho_begane_grond_first_design_20251225_9605f7.jpg
180609046_1598406_eekho_eerste_verdiepi_first_design_20251225_bd10af.jpg
180609046_1598406_eekho_tweede_verdiepi_untitled_20251225_ff1040.jpg
180609046_1598406_eekho_zolder_untitled_20251225_749f94.jpg
180609046_1598406_eekho_begane_grond_tu_first_design_20251225_9df148.jpg
180609046-293685628-se-146016034-1766654667121.png
180609046-293685772-se-146016034-1766654667121.png
180609046-293687491-se-146016034-1766654667121.png
180609046-293688280-se-146016034-1766654667121.png
180609046-293689027-se-146016034-1766654667121.png